Lea Bridge Library Pavilion in Waltham Forest is a precious example of the potential for civic architecture. Rooted in its locale and putting community at its heart, not only is it a thriving social centre – it is a warm and welcoming one.
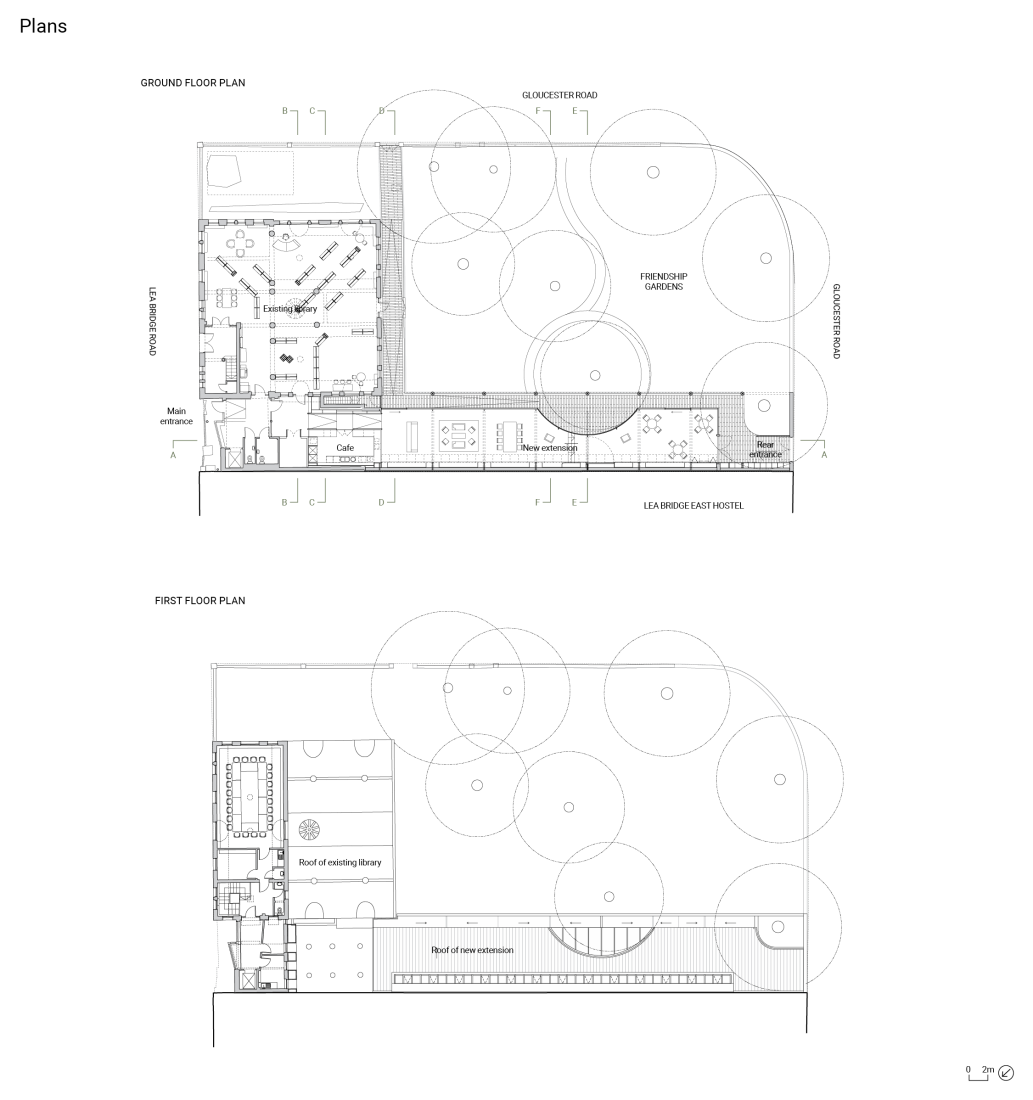
With public libraries under pressure nationwide, it’s a particular delight to celebrate this well-used and well-loved resource. Studio Weave’s 250m2 timber extension to the Grade-II listed library engages harmoniously with its context, adding a café and adaptable community space with improved connections to the library’s gardens. The scheme elegantly addresses the changing role of a library, offering places to work, learn, socialise and gather, and in so doing delivers a revived civic heart for the Borough of Waltham Forest.
Reuse is a strong and heartening theme throughout the project. All internal joinery and furniture were made using timber salvaged from trees felled across London’s publicly owned streets and parks as a way of reducing the overall carbon footprint of the scheme. The timber salvaged includes London plane, poplar, sycamore, ash, holm oak, turkey oak, sequoia, horse chestnut and more, all adding a rich variety of textures and tones.
Advertisement
A few months ago, Studio Weave completed the second phase of the long-term strategy to enhance the library, delivering a climate-resilient community garden in collaboration with horticulturist Tom Massey. The new forest garden is a self-sustaining, layered ecosystem and includes a timber playground sited opposite a raised seating area and performance space, adding further social spaces to the revived civic centre.
Local residents have played a key role in the garden’s delivery and were invited to join the design team in planting a variety of climate-resilient species. The garden opened as the venue of the 2023 People’s Pavilion Festival during the summer, offering a public programme of events produced by community interest company Beyond the Box and further underlining the positive community impact of the whole scheme.
Prior to the extension and change in its programme, Lea Bridge Library was declining in its use and struggling to justify its running costs. By developing the library and adjacent gardens to create new indoor and outdoor spaces, the scheme has created opportunities to make use of the site seven days a week, increasing its average monthly footfall by almost four times.
Location London E10 • Completion June 2023 • Construction cost £711,000 • Gross internal floor area 250m2 • Client London Borough of Waltham Forest • Engineer Timberwright • Services engineer NPS London • Annual carbon emissions Not supplied • Operational energy use 52.34 kWh/m2/yr
The 2023 AJ Architecture Awards are supported by

















